Arefin Chisty | Meraj Nasir | Yashraj Singh Chauhan

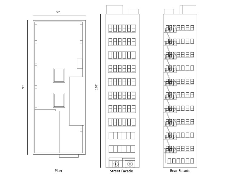
147 West 25th Street is a commercial building located in the neighborhood of Chelsea, Manhattan between 6th and 7th Avenue. Despite its prominent location, the building currently stands as 80% vacant, presenting the opportunity to reimagine and revitalize the space.

It is a tall and narrow building, nestled between two adjacent buildings. We are proposing a new concept for the problem that New York City faces of deep building plots with little access to sunlight. In the case of this building, possible apartments in the north façade would be least exposed to sunlight and he building itself is surrounded by taller buildings. We chose this building because it emphasizes the issue we are proposing to resolve.

The building is South oriented and has a short backyard. With these type of restrictions, this is a prime example of one of the more difficult plots to redesign into a residential building. After performing a sun study, it can be confirmed that sunlight is not reaching the lower levels of the space.
Design Inspiration

We were asked to create and present a mood board, our team’s shared interest was cubic construction and facades. Initially, our attention was captivated by the simplicity inherent in the cubic form. We were particularly intrigued by the potential for structural elegance and weightlessness achievable through the implementation of a cubic framework. This prompted us to look deeper into the forms that a cube can take, sparking our curiosity about its potential in higher dimensions.

As our exploration of the potential of higher dimensions within the cubic framework intensified, we were particularly intrigued with the concept of the tesseract—a construct involving nested cubes, a cube within a cube. The discovery of the tesseract served as a source of inspiration, leading us to envision how we could integrate its complex fourth dimensional nature into our design concept. Tesseract being a fourth dimension object we can only project it’s complex geometry into third dimension.

We developed the initial iteration of our unit block. This approach paved the way for our units to adopt a stepped floor plan, following in the footstep of Adolf Loos and Frank Lloyd Wright and embracing a more dynamic spatial arrangement. By designing our units with the essence of multidimensionality, we aimed to redefine the concept of living spaces, offering residents an experience that goes beyond conventional boundaries and invites exploration of varying levels within their living environment.

We started to produce results that seemed to solve the problem of bringing in sunlight into the spaces while emphasizing a lightness to the structure. Each module, or unit, is designed in such a way that it provides the user with the experience of moving inside a higher dimension, connecting multiple levels with each other following the projected geometry of tesseract into three dimensions.

In our second iteration, we refined the unit block design to ensure seamless integration of means of egress and circulation. This optimized functionality while maintaining the dynamic spatial arrangements and emphasis on lightness that define our approach. We have successfully solved the issue of the sunlight and tried to verify the hypothesis with initial solar analysis studies starting simply with sectional and façade analysis.
Solar Analysis

We conducted a solar analysis through the utilization of a Grasshopper plugin, which provided insights into the anticipated exposure of the proposed conceptual space to direct sunlight. Even after using the system we developed to open up the space, we still ran into issues with sunlight reaching the lower levels. We considered incorporating reflective surfaces at specific angles and locations to ensure that light is reaching the lower levels.

Following a thorough sectional analysis, the use of reflective strategies became essential. Mirrors and other reflective surfaces such as polished aluminum cladding, were strategically integrated to redirect sunlight, enhancing illumination for the lower levels of the space. This approach not only enhances the spatial experience but also emphasizes the interplay between light and form.
It is evident that just by adding split levels and implementing light weight structures will not result in bringing sunlight to the lower levels, this confirmed the need for including reflected surfaces into our design.
We used the AutoCAD Software Formit to conduct a shadow study of our proposed concept, analyzing its performance during both winter and summer seasons. This study revealed a consistent pattern of sunlight infiltration into the building’s core, presenting us with an opportunity to confirm the use of reflection techniques to expose the lower floors to direct sunlight

Solar floor plans based on mirror reflection sectional analysis.
Machine Learning


As a studio we were all introduced to the pix2pix script, explain in depth how it is done, before our code editing Utilizing the pix2pix model training script, we inputted a dataset composed of floor plans designed with split levels, including variations structured to preserve the building’s original core.



We created 270 new floor plans to supply the script with data. Due to the complexity of split levels in the plans, the database had to be manually generated as such data did not previously exist.

PIX2PIX SCRIPT
Machine Learning + Solar Analysis

Floor plans generated based on solar analysis




We employed the pix2pix machine learning script to analyze a dataset comprising floor plans featuring a redesigned core layout. Through this process, the script leveraged the dataset to generate anticipated floor plans for the reconfigured space, having learned from the inputted information. This application of machine learning enables the generation of predictive floor plans, offering valuable insights into the potential outcomes of implementing the new core design within the space.

After working with pix2pix and getting predicted images, we went back to apply it to our specific site. This refinement involved a careful adjustment of the unit block layout, ensuring a seamless and efficient flow of movement throughout the space. By prioritizing the integration of circulation pathways within the space’s design, we aimed to optimize functionality and user experience while maintaining coherence with the broader circulation framework. Instead of one central atrium we introduced three diagonal shafts that captures sunlight. A vertical garden wall on the north side, creating a veil of privacy from the neighboring buildings.

The module was repeated and placed such that it translates into a tower. We have enhanced the concept to better facilitate circulation within the stepped-floor spaces, specifically considering its relationship with the main circulation pathways and means of egress.


