Spring 24
Welcome to the final review of 702B Computational Design Studio II of the Master of Science in Architecture, Computational Technologies, School of Architecture & Design, the New York Institute of Technology on Thursday, May 9, 2024 at 2 PM (EDT) – Join via zoom here.
Instructor
Sandra Manninger, Associate Professor, School of Architecture & Design, New York Institute of Technology
Teaching Assistants
Karan Rajeshbhai Patel
Amisha Sanjaybhai Bavadiya
Jury members
Matias del Campo, Associate Professor, Taubman College of Architecture & Design, University of Michigan
Daniel Köhler Assistant Professor at the University of Texas at Austin School of Architecture
Pablo Lorenzo-Eiroa, Associate Professor, Director of the AI Lab, School of Architecture & Design, New York Institute of Technology
Ryan Manning, Architect, Author, Curator, Educator, Principal Quirkdee
Alessandro Melis, IDC Foundation Endowed Chair, Professor, Director, Architecture, Computational Technologies, School of Architecture & Design, New York Institute of Technology
Athina Papadopoulou, Assistant Professor, Health & Design, School of Architecture & Design, New York Institute of Technology
Jonathan Scelsa, Associate Professor, School of Architecture, Pratt Institute
Tom Verebes, Professor of Architecture , School of Architecture & Design, New York Institute of Technology
Florencia Vetcher, Assistant Professor, Director Interior Design Department, School of Architecture & Design, New York Institute of Technology
Jason Vigneri-Beane, Professor, School of Architecture, Pratt Institute
S24_Studio description
ARCH 702B is the second Advanced Architecture Design Studio in the Master of Science in Architecture, Digital Technologies program. The studio follows an applied research approach to computational design by developing digital experiments. Depending on the project, students will address architecture through expert and learning systems through either individual, group, or (a) class-wide project(s).
The studio interrogates how technological advancements will imprint the organizational patterns of design and fabrication.
S24_Project description
This term, the studio is focusing on mixed housing projects in Manhattan’s garment district, based on the City-of-Yes initiative by the Department of City Planning. We will be looking at three group presentations focusing on how learning tools will impact the way we design.
The department of City Planning has initiated the City of Yes project, which aims to update New York City’s zoning regulations in support of small businesses and creating affordable housing.
One of the initiatives is to convert underused offices and other non-residential space into mixed use housing projects including many buildings constructed after 1961. https://www.axios.com/2024/01/16/office-conversions-nyc-apartments
Motivation of This Initiative
In a world where hybrid work models are becoming the norm, cities are compelled to adapt. This transformation is crucial, especially considering the escalating housing shortages and soaring rents, compounded by an all-time high national office vacancy rate of 18.6%, as reported by Cushman & Wakefield.
Current Developments
As part of the NYC Office Conversion Accelerator program, 46 buildings have enrolled, and four have already begun the transformation process. These are projected to yield over 2,100 housing units, as informed by a spokesperson from Mayor Eric Adams’ administration.
Scope of the Project
Manhattan, New York
23rd ST to 40th ST and 5th Ave to 8th Ave

S24_Methods of Assessment
Integrating ML techniques into a design protocol
1 Data
– Data retrieval
– Data-set generation
2 developing protocols to generate 2d information/data
3 developing protocols to generate 2 ½d information/data

There are many definitions of Machine Learning (ML). One, e.g., defines ML as a subfield of computer science that gives computers the ability to learn without being explicitly programmed. Another definition describes ML as the branch of AI that involves creating algorithms that can learn from data.

The image above provides a basic representation of how ML models operate: data (on the left side) plus the right mathematical model with its corresponding loss function (on the right side) which is translated into code.

Most ML models require substantial amounts of data to produce accurate projections or results (Image visualization of the MNIST dataset)
Creating datasets through data collection or generation is a crucial step in developing machine learning models. This data may include numerical values, images such as photographs, or graphical representations such as diagrams, or architectural drawings.
Today we will be looking at three group presentations:
Arefin Chisty – Meraj Nasir – Yashraj Singh Chauhan
Alejandro Romero – Amisha Bavadiya – Jahan Selim – Selin Dastan
Jacob Sam – Karan Patel – Mike Saad
Computational Design Studio II
Spring 2023
Architecture, Computational Technologies, School of Architecture and Design, New York Institute of Technology
Instructors
Sandra Manninger, Associate Professor , Alessandro Melis, Director Architecture Computational Technologies
Teaching assistanceance
Dhruvin Ankhad
Paul Biswayan
Advik Maniar
A{AI} overview
The studio will follow an applied research approach to computational design by developing digital and physical experiments, leading to full-scale prototypes, numerically fabricated spatial representations, or a class wide interactive interdisciplinary exterior or interior installation.
Digital fabrication will be expanded to include machinic and automation systems, like computer aided manufacturing (CAM) software, computer numerical controlled (CNC) manufacturing, and robotics, interfacing them with learning systems, like machine learning (ML) systems in the field of artificial intelligence (AI).
The design and investigation of materials and fabrication processes, exploring automation, expert systems and learning systems will be tested to develop either individual, group, or (a) class-wide project(s). The knowledge acquired through the previous studios, core and elective seminars will be integrated into physical representation.
Each class will be asked to integrate the diverse knowledge previously acquired, and potentially activate new mediums and new media as means of architecture production, by implementing contemporary technologies that aim to generate new parameters, innovative design-thinking processes and enable proto-architectural structures.
Methods of assessment will include:
1.Automation systems
2.Expert systems
3.Learning systems
Description of assignments
Project as collateral event at the
Biennale Architettura 2023: The Laboratory of the Future
The 18th International Architecture Exhibition will be held from Saturday 20 May to Sunday 26 November, 2023
Description of the works to be exhibited
“Students as Researchers: Creative Practice and University Education”
The “Students as Researchers: Creative Practice and University Education” Symposium will deal with the themes of education and learning that are the subject of the exhibition. In times of crisis like the current one, the importance of subverting the system, not only economic and social, but also the ones related to teaching methods, is a key point in the discussion of the proposed topics. In this sense, a new educational paradigm in which the figures of teacher and student can be reversed with the aim of providing the latter not only with a certain amount of knowledge, but an incentive to use one’s creativity to explore new solutions, is certainly at the basis of an environmental, social, and structural revolution that is now more necessary than ever. Maria Perbellini
Technologies are significantly driving the way we design. But as much as we are shaped by our social, cultural, and natural environments, so is technology, when we choose how to use and engage with it. Design interfaces and connects us to new technologies. It can uncover unmet user needs and propose unimagined opportunities to create innovative designs, that have the potential to change behaviors, economies, and culture itself.
Artificial Intelligence (AI) technologies in general, and Machine Learning (ML) specifically, are already affecting our everyday life, however, how they will manifest in the disciplines of architecture and design is still in question.
Our futures are being established by technologies that are developed today. We do have the chance to engage with these emergent technologies and shape the way they are designed, applied and maintained. Design should not be utilized as an afterthought or mainly to repair damage, design should be leading us forward.

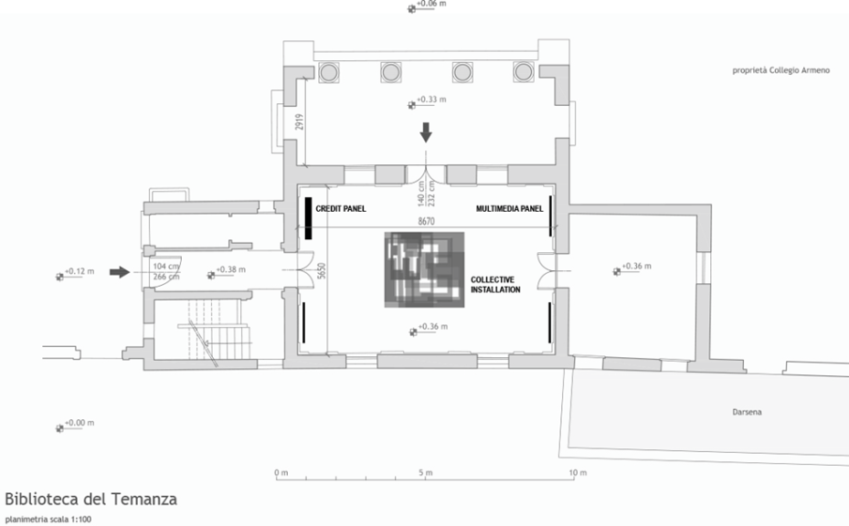
Casino Temanza, Venice. Plan.

Casino Temanza, Venice. Google.

Casino Temanza, Venice. Façade
Course Information
Program: Master of Science in Architecture, Computational Technologies,
30 Credit Post-Professional Degree Program
Term and date: Spring Term
Course number and section: ARCH 702B
Credits: 6
A{AI} project
Studio A{AI} has been invited to participate in the CityX project, curated by Professor Tom Kovac at RMIT. Some of the projects might get the opportunity to present their work at the Architecture Biennale Venice, in 2021.
Transdisciplinary and globally focused in its intent and content, CityX invites leading international architecture schools, visionaries and design researchers to explore innovative design research strategies addressing the future of Chinese cities It aims to showcase new architectural and urban design concepts for the staged development of Xiong’an New Area. This will occur through international studio and design workshops, debates and discussions with leading researchers producing engaging dynamic design solutions.
CityX presents a unique opportunity to investigate urban design strategies and architectural proposals that can inform the future evolution and sustainable development of Xiong’an New Area. The research project strategy will aim at commissioning and curating architectural and urban design investigations into the future development of Xiong’an with a particular focus on the impact of emerging urban economies and technologies. Its research will be launched as a blueprint for the sustainable future evolution of architectural and urban design in China.
Students will be focusing on a field of their interest. Starting off with an intensive design and research workshop that will introduce the main tools used during the semester, we’ll be working in teams to develop varying modes of operation.
A{AI} method
The methodological approach is two-fold. We will critically examine the current landscape of ML, including its technological, social, and cultural aspects. On the one side we will inform ourselves about existing technologies and applications as well as design tools, with a specific focus on how these techniques are currently introduced in the fields of art and design. We will look at the shape of data that forms the base for these algorithmic models. We will consider opportunities to develop new design sensibilities, reframing authorship, bias, and errors in the design protocols. And we will be examining how existing human-centered design methods align with these new technologies, or what new methods may emerge.
The technological aspect of the course will include the training of a specific algorithmic model and its respective pre- and postprocessing protocols. No coding skills are required.
A{AI} expected outcomes
This studio will emphasise on the conceptualization and design for the development of Xiong’an New Area.
CityX is inviting design concepts and creative proposals for the city of Xiong’an New Area, China. It presents a unique opportunity to make architectural proposals that aim to inform the future evolution of Xiong’an New Area. The urban propositions for the development for Xiong’an are to be investigated as short, mid and long-term projections. Invited participants are encouraged to present design research led visions and proposals for the staged development of Xiong’an. Propositions are to range in scale from the urban, infrastructural built fabric scale architectural designed projects, new fabrication techniques and technologies.
A{AI} learning experience
By the successful completion of this course, students will:
1 Be comfortable working with new technologies and shaping them.
Gain experience at working with new technologies, understanding the voice that design has in determining how new technologies are used and in what direction they develop, and be able to apply a critical lens on their social and cultural impact.
Use learnings to recommend new technology features, tools, or directions for its future development.
2 Be able to define a complex design problem through research, framing, and apply research methods to studio work.
Be able to investigate and utilize precedent, contextual and literary research to shape design questions and processes.
Articulate concepts, critique arguments, manage the creative process and work as a team member.
Apply this knowledge toward the development of original, insightful, critical explorations.
3 Be able to understand, manage and develop design processes.
Be able to conceptualize design protocols and corresponding technology requirements.
Understand different design processes, the rationale for choosing one vs another, and be able to manage a project using that process.
4 Understand the landscape of existing design methods & tools and be able to utilize those that are appropriate to the project — or, if necessary, develop new methods that better serve the project’s needs.
A{AI} schedule
A{AI} requirements
There are no specific requirements or prior knowledge of software utilized in the studio. This studio however is geared towards students with a keen interest in the application of computational tools in their respective design projects.
A{AI} reading list
2009: Boden, Margaret A.: The Creative Mind: Myths and Mechanisms (Creativity in a Nutshell, p. 1-10), London: Routledge
2012: Carpo, Mario: The Digital Turn in Architecture, Hoboken: Wiley
2014: Carpo, Mario: Breaking the Curve: Big Data in Design, in Artforum, Vol 52, No 6 New York: Next
2016: Bratton, Benjamin H.: The Stack: On Software and Sovereignty, Cambridge: The MIT Press
2016: del Campo, Matias (Ed): AD Moods, Hoboken: Wiley
2017: Wright Steenson, Molly: Architectural Intelligence: How Designers and Architects Created the Digital Landscape, Cambridge: MIT Press
2018: Bridal, James: New Dark Age: Technology and the End of the Future, New York: Verso
2018: Ford, Martin: Architects of Intelligence: The truth about AI from the people building it, Birmingham: Packt
A{AI} viewing list
1977: Eames, Charles and Ray: Powers of 10
2014: Bratton, Benjamin: The Stack: Design and Geopolitics in the Age of Planetary-Scale Computing
2014: Tyldum, Morten: The Imitation Game
2016: Bridal, James: A New Dark Age (33c3)
2019: Bratton, Benjamin: An Update on The Stack
2020: Kohs, Greg: AlphaGo