Welcome to the Final review of 702B Computational Design Studio II of the Master of Science in Architecture, Computational Technologies, School of Architecture & Design at the New York Institute of Technology on Thursday, May 9, 2024 at 2 PM (EDT) – Join via zoom here.
This is the second and final studio of the Architecture, Computational Technologies master program.
The studio interrogates how technological advancements will imprint the organizational patterns of design and fabrication.
This term, the studio is focusing on mixed housing projects in Manhattan’s garment district, based on the City-of-Yes initiative by the Department of City Planning. We will be looking at three group presentations focusing on how learning tools will impact the way we design.
A{AI} – ARCHITECTURE AND ARTIFICIAL INTELLIGENCE
Studio 702B
Architecture, Computational Technologies, School of Architecture and Design, New York Institute of Technology
Instructors
Sandra Manninger, Associate Professor, School of Architecture & Design, New York Institute of Technology
Teaching Assistants
Karan Rajeshbhai Patel
Amisha Sanjaybhai Bavadiya
Jury members
Matias del Campo, Associate Professor, Taubman College of Architecture & Design, University of Michigan
Benjamin Ennemoser, Assistant Professor, School of Architecture, Texas A&M University, Professor The University of Hongkong
Pablo Lorenzo-Eiroa, Associate Professor, Director of the AI Lab, School of Architecture & Design, New York Institute of Technology
Daniel Köhler Assistant Professor at the University of Texas at Austin School of Architecture
Ryan Manning, Architect, Author, Curator, Educator, Principal Quirkdee
Alessandro Melis, IDC Foundation Endowed Chair, Professor, Director, Architecture, Computational Technologies, School of Architecture & Design, New York Institute of Technology
Athina Papadopoulou, Assistant Professor, Health & Design, School of Architecture & Design, New York Institute of Technology
Tom Verebes, Professor of Architecture , School of Architecture & Design, New York Institute of Technology
Florencia Vetcher, Assistant Professor, Director Interior Design Department, School of Architecture & Design, New York Institute of Technology
Jason Vigneri-Beane, Professor, School of Architecture, Pratt Institute
The studio followed an applied research approach to computational design by developing digital and physical experiments, leading to an interactive and interdisciplinary interior installation.
Digital fabrication was expanded to include machinic and automation systems, like computer aided manufacturing (CAM) software, computer numerical controlled (CNC) manufacturing, and robotics, interfacing them with learning systems, like machine learning (ML) systems in the field of artificial intelligence (AI).
Each student/student group was asked to integrate the diverse knowledge previously acquired, and potentially activate new mediums and new media as means of architecture production, by implementing contemporary technologies that aim to generate new parameters, innovative design-thinking processes and enable proto-architectural structures.

Arch 702B Course Information
“Students as Researchers: Creative
Practice and University Education”
The “Students as Researchers: Creative Practice and University Education” Symposium will deal with the themes of education and learning that are the subject of the exhibition. In times of crisis like the current one, the importance of subverting the system, not only economic and social, but also the ones related to teaching methods, is a key point in the discussion of the proposed topics. In this sense, a new educational paradigm in which the figures of teacher and student can be reversed with the aim of providing the latter not only with a certain amount of knowledge, but an incentive to use one’s creativity to explore new solutions, is certainly at the basis of an environmental, social, and structural revolution that is now more necessary than ever.
Coordinator: Maria Perbellini,
Organization: Marcella Del Signore, Sandra Manninger, Athina Papadopoulou.

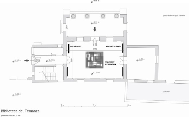
Armenian Culture Studies and Documentation Center
Revitalization
There has always been an appreciation for historic architectural units and ensembles. They have and are being conserved and preserved. In the studio we took the opportunity to talk about revitalization. What are the difference and what was driving the European architects from preservation and conservation to revitalization?
A{AI} – ARCHITECTURE AND ARTIFICIAL INTELLIGENCE
A{AI} overview
Technologies are significantly driving the way we design. But as much as we are shaped by our social, cultural, and natural environments, so is technology, when we choose how to use and engage with it. Design interfaces and connects us to new technologies. It can uncover unmet user needs and propose unimagined opportunities to create innovative designs, that have the potential to change behaviors, economies, and culture itself.
Artificial Intelligence (AI) technologies in general, and Machine Learning (ML) specifically, are already affecting our everyday life, however, how they will manifest in the disciplines of architecture and design is still in question.
Our futures are being established by technologies that are developed today. We do have the chance to engage with these emergent technologies and shape the way they are designed, applied and maintained. Design should not be utilized as an afterthought or mainly to repair damage, design should be leading us forward.
Jury members
Dr. Alisa Andrasek, Professor Design Innovation Strategy at the Royal Melbourne Institute of Technology.
MArch. Yan Gao, Professor The University of Hongkong.
MArch. Xin Guo, Assistant Professor School of Architecture & Urban Planning at Shenzhen University.
MArch. Wanyu He, Adjunct Assistant Professor The University of Hong Kong.
Dr. Tom Kovac, Professor of Architecture and Deputy Director Sir Lawrence Wackett Centre at the Royal Melbourne Institute of Technology.
Dipl. Ing. Peter Russel, Dean Institute for Future Habitat Studies at Tsinghua Shenzhen International Graduate School, see also here.
Dr. Philip Yuan, Professor College of Architecture and Urban Planning at Tongji University, see also here.
Dr. Weiguo Xu, Professor and Chair of the Architecture Department in the School of Architecture at Tsinghua University, see also here, here, and here.
Zhiang Zhang
Zhenyuan Yang
Jie Chen
A{AI} overview
Technologies are significantly driving the way we design. But as much as we are shaped by our social, cultural, and natural environments, so is technology, when we choose how to use and engage with it. Design interfaces and connects us to new technologies. It can uncover unmet user needs and propose unimagined opportunities to create innovative designs, that have the potential to change behaviors, economies, and culture itself.
Artificial Intelligence (AI) technologies in general, and Machine Learning (ML) specifically, are already affecting our everyday life, however, how they will manifest in the disciplines of architecture and design is still in question.
Our futures are being established by technologies that are developed today. We do have the chance to engage with these emergent technologies and shape the way they are designed, applied and maintained. Design should not be utilized as an afterthought or mainly to repair damage, design should be leading us forward.
A{AI} project
Studio A{AI} has been invited to participate in the CityX project, curated by Professor Tom Kovac at RMIT. Some of the projects might get the opportunity to present their work at the Architecture Biennale Venice, in 2021.
Transdisciplinary and globally focused in its intent and content, CityX invites leading international architecture schools, visionaries and design researchers to explore innovative design research strategies addressing the future of Chinese cities It aims to showcase new architectural and urban design concepts for the staged development of Xiong’an New Area. This will occur through international studio and design workshops, debates and discussions with leading researchers producing engaging dynamic design solutions.
CityX presents a unique opportunity to investigate urban design strategies and architectural proposals that can inform the future evolution and sustainable development of Xiong’an New Area. The research project strategy will aim at commissioning and curating architectural and urban design investigations into the future development of Xiong’an with a particular focus on the impact of emerging urban economies and technologies. Its research will be launched as a blueprint for the sustainable future evolution of architectural and urban design in China.
Students will be focusing on a field of their interest. Starting off with an intensive design and research workshop that will introduce the main tools used during the semester, we’ll be working in teams to develop varying modes of operation.
A{AI} method
The methodological approach is two-fold. We will critically examine the current landscape of ML, including its technological, social, and cultural aspects. On the one side we will inform ourselves about existing technologies and applications as well as design tools, with a specific focus on how these techniques are currently introduced in the fields of art and design. We will look at the shape of data that forms the base for these algorithmic models. We will consider opportunities to develop new design sensibilities, reframing authorship, bias, and errors in the design protocols. And we will be examining how existing human-centered design methods align with these new technologies, or what new methods may emerge.
The technological aspect of the course will include the training of a specific algorithmic model and its respective pre- and postprocessing protocols. No coding skills are required.

A{AI} expected outcomes
This studio will emphasise on the conceptualization and design for the development of Xiong’an New Area.
CityX is inviting design concepts and creative proposals for the city of Xiong’an New Area, China. It presents a unique opportunity to make architectural proposals that aim to inform the future evolution of Xiong’an New Area. The urban propositions for the development for Xiong’an are to be investigated as short, mid and long-term projections. Invited participants are encouraged to present design research led visions and proposals for the staged development of Xiong’an. Propositions are to range in scale from the urban, infrastructural built fabric scale architectural designed projects, new fabrication techniques and technologies.
To Build a Future City. Automated Mobilization by Davy Huang
Walkable CityX by Yinhang Han
Shape of Urban Green. Food and the City by Tracy Chan
Environmental Pressures. Water by Vivien Ng
Environmental Pressures. Distribution by Star Yan
Environmental Pressures. Wind by Zhao Yu
Chronology by Alexander Carter















































