Author: Trushita Yadav

Survey
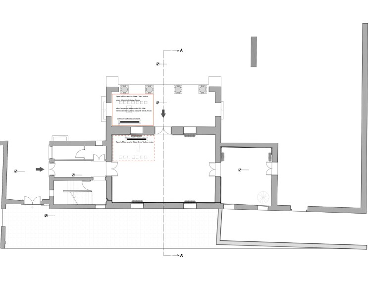
Building up from the first semester studio and courses, the site was analyzed using big data survey, gathering and processing mechanisms, robotic sensors and measuring data gathering terminals/data link, and implementing machine learning/AI
As the location will not be accessible until the exhibition will be initiated, the brief was to build hypothesis and assumption using space availability as a simulation space in the MA or OW campuses. Also, to design the space digitally also including the “non-material” components of the space.
Documenting the site:




Design Hypothesis
Building up from the previous assignment design hypothesis was developed based on the AI-agent within the design context considering:
a_ Agents: -the AI agency
b_ Spaces: the physical context
c_ Interfaces: -the physical and virtual devices which allow relationship between
Agents: -the AI agency

Chapter 1
This Building does not Exist- An attempt at a Theory of Neural Architecture
The chapter starts with the discussing the possibilities of integrating artificial intelligence into architectural design. Which a decade ago was hypothetical since neural networks based on computational process weren’t developed. A neural network is a method in artificial intelligence that teaches computers to process data in a way that is inspired by the human brain.

•AI image generator that is trained on billions of human faces to generate a brand-new face that does not exist from a network of images.

An architectural example of this is this dataset with several thousand images of Baroque plans. The process reveals how a neural style transfer imprints the learned features from Baroque plans to modern plan. The nature of Baroque architecture reflected in the elliptical volumes of spaces, thick poches, undulating walls and other features that are learned by neural network and applied to modern plans. It was a simple experiment, but it also proves that the method does not just imitates a style but rather it produces images that are unexpected, inspiring.

Spaces: the physical context


Interfaces: -the physical and virtual devices which allow relationship in-between



Experiments and Documentations





Fabrication


